Описание
Характеристики
Отзывы
Описание
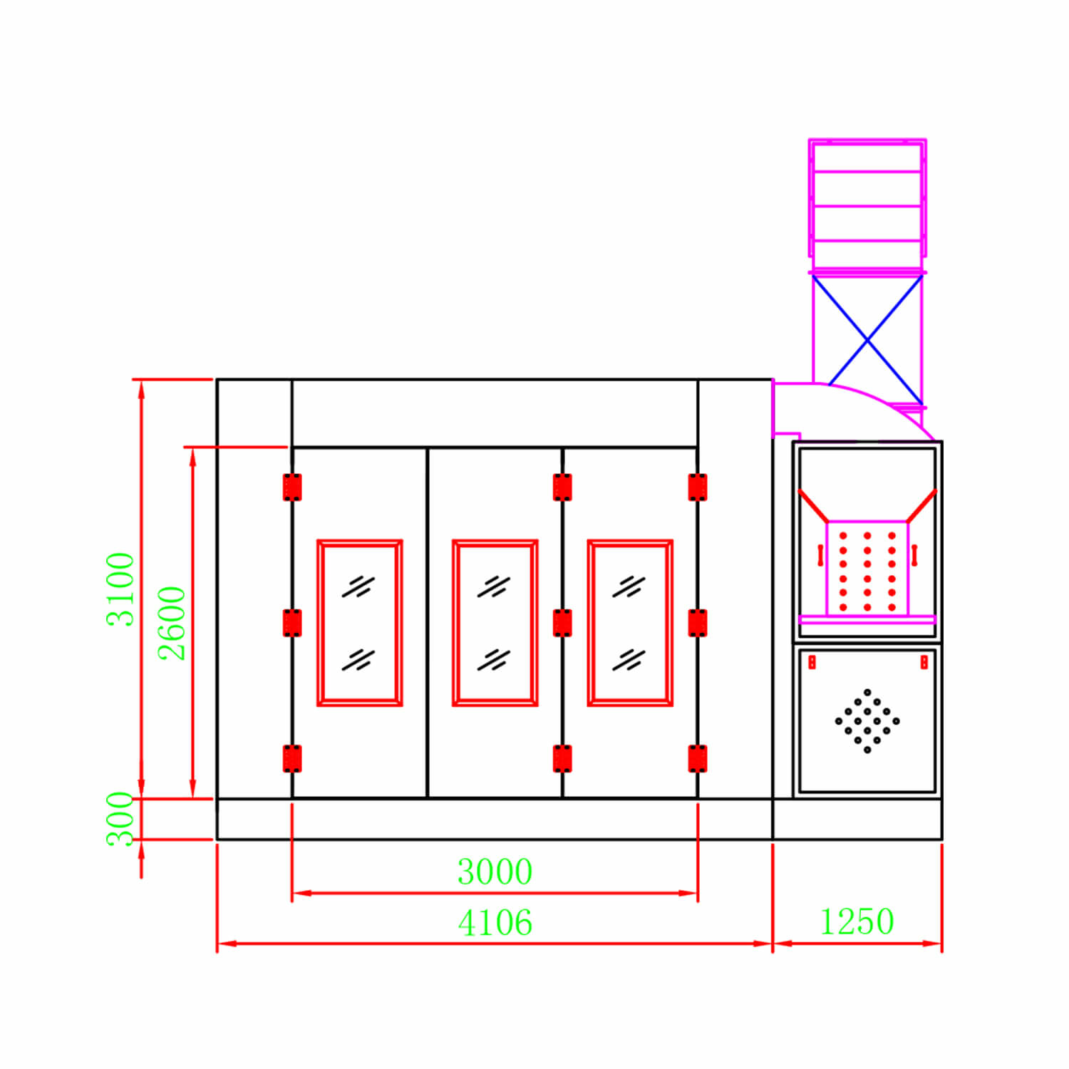
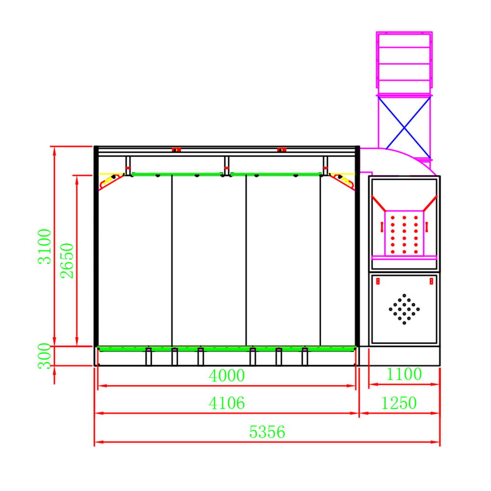
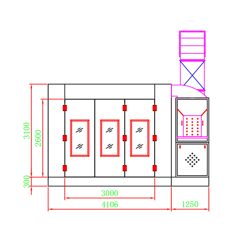
Окрасочно-сушильная камера с приточно-вытяжным тепловентиляционным агрегатом на ТЭНах. Используется для сушки лакокрасочных покрытий и организации технологических процессов окраски. Боковые стены состоят из сэндвич-панелей (негорючий пенополистирол толщиной 53 мм) и являются теплоизоляционными. Визуальный контроль позволяют осуществить 3-х створчатые ворота со встроенными смотровыми окнами. Можно установить дополнительный комплект ворот с целью организации сквозного проезда. Установить приточно-вытяжную группу с любой стороны в процессе монтажа позволяет унифицированная конструкция.
Встроенная трехступенчатая система фильтрации воздуха с угольной очисткой дает возможность очистить воздух от пыли и примесей на 95%. Камера оснащена верхним наклонным освещением на 8 светильников и боковым вертикальным освещением на 8 светильников.
Широкий выбор различных оснований для быстрого и удобного монтажа в любых помещениях со сложными участками позволяет оптимизировать воздушные потоки для любых технологических процессов окраски, продувки и сушки. Пульт управления расположен на внешней стороне стены и может устанавливаться в любом удобном месте.
Особенности и преимущества:
В качестве нагрева в камере используется система электрических ТЭНов.
Металлическое основание высотой 300мм. и 100% усиленный решетчатый пол.
Для большей эффективности в камере установлен пластинчатый рекуператор, который позволяет экономить до 50% тепловой энергии.
Дополнительная угольная система фильтрации для снижения уровня выбросов сольвентов.
Шиберные заслонки регулировки воздушного потока.
Рассекатели воздушного потока для 100% прохождения подаваемого воздуха через зону нагрева теплообменника для экономии топлива.
Сплошная заездная аппарель.
Встроенная трехступенчатая система фильтрации воздуха с угольной очисткой дает возможность очистить воздух от пыли и примесей на 95%. Камера оснащена верхним наклонным освещением на 8 светильников и боковым вертикальным освещением на 8 светильников.
Широкий выбор различных оснований для быстрого и удобного монтажа в любых помещениях со сложными участками позволяет оптимизировать воздушные потоки для любых технологических процессов окраски, продувки и сушки. Пульт управления расположен на внешней стороне стены и может устанавливаться в любом удобном месте.
Особенности и преимущества:
В качестве нагрева в камере используется система электрических ТЭНов.
Металлическое основание высотой 300мм. и 100% усиленный решетчатый пол.
Для большей эффективности в камере установлен пластинчатый рекуператор, который позволяет экономить до 50% тепловой энергии.
Дополнительная угольная система фильтрации для снижения уровня выбросов сольвентов.
Шиберные заслонки регулировки воздушного потока.
Рассекатели воздушного потока для 100% прохождения подаваемого воздуха через зону нагрева теплообменника для экономии топлива.
Сплошная заездная аппарель.
Характеристики
Бренд
WDK (WIEDERKRAFT)
Производитель
WIEDERKRAFT
Подключение
380
Общая потребляемая мощность, кВт
77,5
Размеры въезда
3000х2600
Система нагрева
Электрические ТЭНы 60 кВт
Верхнее освещение
8 х 4 LED-светильников
Боковое освещение
8 х 2 LED-светильников
Внешние размеры (ДхШхВ)
7006х5356х3400
Внутренние размеры (ДхШхВ)
6900х4000х2650
Скорость потока воздуха, м/с
0,25
Приточный вентилятор, тип
Турбо
Приточный вентилятор, производительность
24000
Приточный вентилятор, мощность
7,5
Вытяжной вентилятор, тип
Турбо
Вытяжной вентилятор, мощность
5,5
Вытяжной вентилятор, производительность
20000
Все характеристики
Отзывы
Отзывов еще никто не оставлял
Ранее просмотренные
Сервисы от нашей компании
В нашей компании Вы можете заказать доставку товара любым удобным способом. Мы работаем со всеми ТК страны, а также имеем...
06.10.2024
Предоставляем сервис по выезду инженера на замер монтируемых конструкций!
07.10.2024
Комплектация объекта от фундамента до кровли - это наша сильная сторона!
06.10.2024
Услуги от нашей компании
Подъемные и откатные ворота под ключ в Екатеринбурге. В нашей компании можно заказать подъемные и откатные ворота под ключ. Мы...
23.09.2024
В нашей компании можно заказать гибку трубы по чертежу и техническому заданию заказчика! Изготовим гиб толстостенной трубы в короткие сроки...
26.11.2024
Наша компания реализует проект по комплексному обустройству Вашего помещения.
27.09.2024
Монтаж инженерных сетей в Вашем загородном доме будут осуществлять только квалифицированные специалисты, с многолетним опытом работы, прошедшие курсы и практические...
27.09.2024
В нашей компании колеровка производится по каталогам таких известных марок как: Cerezit, Bergauf и других. Специалисты нашей компании помогут при...
27.09.2024
Специалисты нашей компании готовы выполнить монтаж оконных конструкций согласно Вашему заказу. Мы готовы выполнить все работы под ключ, начиная от...
26.09.2024
Штукатурный фасад под ключ. Команда квалифицированных монтажников, имеющих многолетний опыт работы, оснащенная современными инструментами, быстро, и качественно произведет монтаж системы...
24.09.2024
